都心の文教地区、市ヶ谷エリアに立地する女子専用ドーミー。
都心の文教地区、市ヶ谷エリアに立地する女子専用ドーミー
| 2026年春にリニューアルオープン予定です。現在、「大妻加賀寮(大妻女子大学・大妻女子大学短期大学部の学寮)」として運営しております。 *一部フロアは、大妻女子大学・大妻女子大学短期大学部生専用として運用する予定です。料金が異なりますので特設サイトをご確認ください。 |
下記リンクより、ご自宅からでも見学が可能です!
バーチャル見学をする
新宿区・市ヶ谷エリアに2026年春リニューアルオープンします。
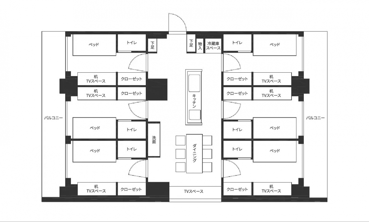
個室タイプと、個室つきのシェアルーム(定員6名)の2タイプの居室をご用意しています。
館内はダイニングルームの他、友人同士でシェアしながら使えるオープンキッチンスペース、和室、ラウンジスペース、
音楽練習ルームなど、多彩な共用設備を充実させています。
ドーミー市谷加賀のある市谷加賀町(いちがやかがちょう)は、
山手線の内側でも住宅や大学等の教育施設が多いエリアで、防衛省が本部を構えるほか、
東京女子医大病院や国立国際医療センターなどの大規模医療施設が集まっています。
神楽坂、四谷エリアにも近く、周辺3つの駅(牛込柳町駅、曙橋駅、市ヶ谷駅)から5つのJR・地下鉄路線が利用可能で、
都内各方面への移動や、大学への通学も大変便利です。
*運営内容・設備については2025年4月時点での予定です。
決まり次第随時更新してまいります。現在の記載内容は予告なく変更させて頂く場合がございますのであらかじめご了承ください。
近隣施設(2025年4月現在)
| スーパー(ライフ市谷薬王寺店) | 徒歩5分(400m) |
| コンビニ(ファミリーマート) | 徒歩6分(450m) |
| 病院(本多内科) | 徒歩5分(350m) |
| ドラッグストア(くすりの福太郎) | 徒歩7分(500m) |
利用できる設備・サービス
-
メールボックス
-
プライベートシャワー
-
キッチン(IH)
-
朝夕の食事
-
ラウンジスペース
-
ダイニングルーム
-
ランドリールーム
-
乾燥機
-
パブリックバス
-
オートロック
-
防犯カメラ
-
AED設備
-
非常用備蓄品
-
スタディールーム
-
入退館システム
-
常駐管理
-
入居者専用アプリ
-
WI-Fiスポット
-
荷物受け取り
-
掃除機貸し出し
-
アイロン貸し出し
-
生活用品リース
-
清掃(共有部)
-
24時間医療相談
-
エレベーター
居室情報
- 洗面化粧台
- ベッド(すのこ型)
- デスク
- 椅子
- タンス(クローゼット)
- 書棚(ラック)
- エアコン
- Wi-Fi
- 照明
- カーテン
- TV端子
- ネット接続LAN端子
- シューズロッカー
- ベランダ
アクセス
- 早稲田キャンパス
電車で20分
- 西早稲田キャンパス
電車で20分
- 戸山キャンパス
電車で20分
最短経路での通学時間の目安です。
- 新宿4分(都営新宿線)
- 本郷三丁目9分(都営大江戸線)
- 四ツ谷2分(JR線)
- 御茶ノ水7分(JR線)
物件概要
- 物件名
ドーミー市谷加賀【2026年リニューアルオープン】
- 住所
東京都新宿区市谷加賀町2-4-31
- 専有面積
洋室11.50㎡(個室)・洋室9.37~10.5㎡(シェアルーム専有面積)
- 構造・規模
鉄筋コンクリート造6階建
- 定員
355名
利用時間・注意事項
- 食事時間
朝食/朝食[平日]/ 6:30 ~ 8:30
朝食[土曜]/ 6:30 ~ 8:30
夕食/夕食[平日]/ 18:30 ~ 22:30
夕食[土曜]/ 18:30 ~ 21:00- 定休日
食事提供は、日曜・祝日・第5土曜・社員研修日はお休みです。また、夏期(お盆)・年末年始・3月末に5~6日程度の休食期間があります。
一部例外がございます。詳細はお問い合わせください。
ドーミー市谷加賀【2026年リニューアルオープン】の料金
-
食事別プラン別途 朝食385円・夕食715円80,400円/月
-
食事込みプラン朝夕2食付き99,760円/月
-
食事別プラン別途 朝食385円・夕食715円70,400円/月
-
食事込みプラン朝夕2食付き89,760円/月
-
食事別プラン別途 朝食385円・夕食715円72,400円/月
-
食事込みプラン朝夕2食付き91,759円/月
- 月間管理費
- 23,000円
- 水道光熱費
- 月額7,150円(翌月請求)
- 通信設備料
- 月額3,960円
- 食事料金(食事別プランの場合)
- 朝食429円・夕食792円(1食単位で計算し翌月請求)
- 入館費用
- 1年契約 160,000円
2年契約 210,000円
3年契約 270,000円
4年契約 290,000円 - 保証金
- 50,000円
- 事務手数料
- 16,500円
- ルームクリーニング費用
- 39,608円 (退去時請求)
- 事務手数料
- 9,350円(更新時)
この学生寮を見ている人
はこちらも
チェックしています
WID+DORMYが
はじめてに選ばれる理由
-
POINT.01朝夕の手作りご飯&
高いセキュリティ -
POINT.02すぐにスタートできる
家具付き個室 -
POINT.03年齢も国も学部も
超えたコミュニティ
様々なサポート制度を
ご用意しています
-
就学支援プログラム
お申し込みから契約まで
すべてご自宅で完結します。 -
定額払いでのお支払い
初期費用を含めて月々
3・5・7
万円ずつの分割払い、
分割手数料
実質0円、
保証金免除。 -
お申し込みサポート
早稲田大学担当者が質問に
お答えします。 -
住み替え制度
マンションへの住み替えも
スムーズです



























